Vào ngày 26/9/2025, Quang Huy đã hoàn thành xong và nghiệm thu dự án Bếp Tam Cốc Ninh Bình với diện tích không gian bếp là 40m². Với hệ thống bếp và các thiết bị hiện đại, được trang bị đầy đủ để cơ sở kinh doanh phục vụ khách du lịch trong nước và quốc tế đến tham quan Ninh Bình. Với không gian nhà hàng sang trọng, hiện đại, cung cấp các món ăn đa dạng, Bếp Tam Cốc Ninh Bình được đánh giá là điểm đến hấp dẫn cho du khách khi ghé thăm cảnh quan địa phương.

Thông tin dự án thi công Bếp Tam Cốc Ninh Bình
- Chủ đầu tư: Chị Thu
- Hạng mục: Cung cấp thiết bị bếp
- Diện tích: 40m²
- Địa chỉ: Tam Cốc – Ninh Bình
- Phương án thi công: Bếp 1 chiều
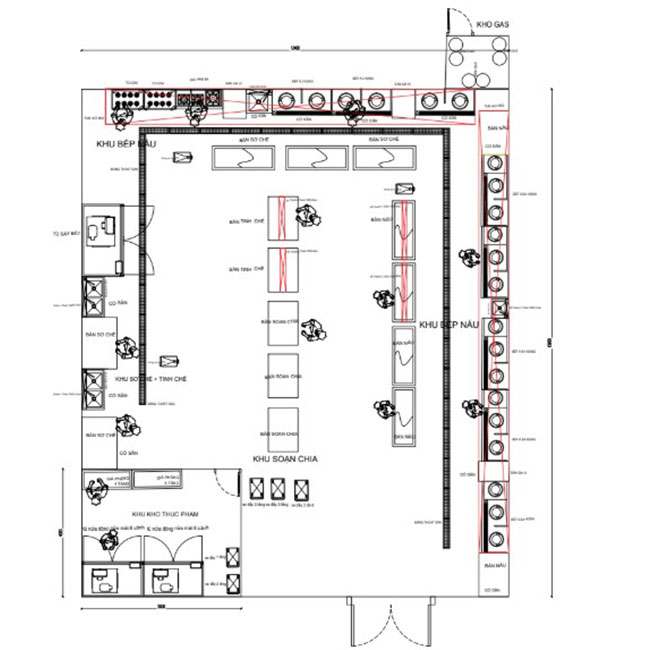
Phương án thi công và bản vẽ dự án
Thiết kế và lắp đặt thiết bị bếp Tam Cốc Ninh Bình
Với mục tiêu tạo ra một không gian bếp hiện đại và tối ưu hiệu suất, Đội ngũ thi công Quang Huy đã bắt tay vào chuẩn bị các thiết bị ngay sau khi có bản vẽ dự án chính thức. Toàn bộ các thiết bị bếp được làm từ vât liệu cao cấp, chất lượng cao, đảm bảo an toàn vệ sinh. Không gian bếp được nghiên cứu, bố trí và thi công đồng bộ nhằm đảm bảo quy trình làm việc khoa học, tối ưu không gian, đồng thời đáp ứng tốt các tiêu chuẩn về an toàn, vệ sinh và hiệu suất sử dụng.
Bếp được chia thành 4 khu vực chính như sau:
Khu sơ chế, tinh chế
- Kệ thanh 1 tầng trên chậu
- Chậu rửa đôi
- Bàn sơ chế
- Tủ sấy bát
- Thùng rác di động
Khu bếp nấu
- Tum hút mùi
- Tủ cơm
- Bếp hầm ba
- Bàn gia vị
- Chậu rửa đơn
- Bếp á 2 họng
- Bếp á 3 họng
- Kệ thanh 1 tầng trên chậu
Khu soạn chia
- Bàn soạn chia
- Bàn tinh chế
- Kệ thanh 2 tầng trên bàn
- Bàn sơ chế
- Thùng rác di động
Khu kho thực phẩm
- Xe đẩy 1,2,3 tầng
- Giá phẳng 4 tầng
- Tủ nửa đông nửa mát 6 tầng








