Dự án thi công bếp ăn công nghiệp do Quang Huy thực hiện tại Bệnh Viện Nội tiết Trung Ương TP.HCM đã chính thức nghiệm thu vào ngày 30/05/2025. Toàn bộ cơ sở vật chất được xây dựng đáp ứng tiêu chuẩn một chiều khắt khe, sử dụng thiết bị Inox chuyên dụng cao cấp. Việc này nhằm mục tiêu đảm bảo bếp vận hành hiệu quả, an toàn tuyệt đối, và sẵn sàng hỗ trợ tối đa Bệnh viện trong công tác chăm sóc và phục hồi sức khỏe của bệnh nhân.

Thông tin dự án thi công bếp ăn Bệnh Viện Nội tiết TW Thành phố Hồ Chí Minh
- Chủ đầu tư: Ban Quản lý dự án công trình y tế
- Hạng mục: Thiết kế, thi công lắp đặt thiết bị bếp nhà hàng
- Diện tích: 120m²
- Địa chỉ: Lô III-27 Khu Tân Tạo, Chợ Đệm, Thị Trấn Tân Túc, Huyện Bình Chánh, Tp.Hồ Chí Minh. (15A Hẻm C8, TT. Tân Túc, Bình Chánh, Hồ Chí Minh, Việt Nam)
- Phương án thi công: Bếp 1 chiều
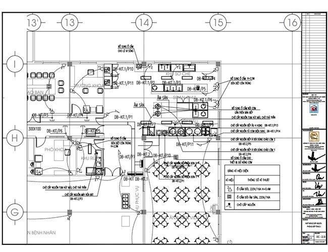
Phương án thi công và bản vẽ dự án
Dự án đã được khởi động bằng giai đoạn thiết kế tỉ mỉ, nơi đội ngũ kỹ sư chuyên nghiệp của chúng tôi phác thảo bản vẽ kỹ thuật chi tiết, đảm bảo tối ưu hóa không gian và quy trình vận hành một chiều.

Thiết kế và lắp đặt thiết bị bếp cho Bệnh Viện Nội tiết Trung Ương TP.HCM
Quang Huy rất vinh dự khi được tín nhiệm trở thành đơn vị thiết kế và thi công hệ thống bếp ăn cho Bệnh Viện Nội tiết Trung Ương TP.HCM. Việc đầu tư vào một hệ thống bếp hiện đại là bước tiến chiến lược nhằm nâng cao chất lượng bữa ăn và đáp ứng nghiêm ngặt tiêu chuẩn vệ sinh an toàn thực phẩm (VSATTP) trong môi trường y tế.
Bếp được chia thành các khu vực chính, kết nối chặt chẽ theo luồng công việc khép kín:
Khu Sơ chế và soạn chia
- Tủ mát bàn chặt
- Bàn inox giá dưới nan có lót gỗ
- Máy thái rau củ quả đa năng
- Máy thái thịt
Khu nấu chính
- Bếp á công nghiệp
- Tủ nấu cơm công nghiệp
- Nồi nấu nước lèo
- Hệ thống hút mùi
Khu dọn rửa
- Chậu rửa ba
- Máy rửa bát
- Tủ sấy bát
Khu lưu trữ
- Tủ mát 2 cánh
- Tủ đông 2 cánh
- Tủ mát bàn chặt
- Tủ 4 cánh inox để đồ khô
- Giá để kho





Dự án thi công bếp ăn công nghiệp tại Bệnh Viện Nội tiết Trung Ương TP.HCM đã hoàn thành thành công, khẳng định năng lực chuyên môn của Quang Huy trong môi trường y tế. Hệ thống bếp hiện đại, được thiết kế theo tiêu chuẩn một chiều nghiêm ngặt và sử dụng thiết bị Inox chuyên dụng cao cấp, sẽ đóng vai trò then chốt trong việc nâng cao chất lượng bữa ăn và đảm bảo vệ sinh an toàn thực phẩm tuyệt đối. Dự án không chỉ hoàn thành đúng tiến độ mà còn góp phần tích cực vào sứ mệnh chăm sóc dinh dưỡng và phục hồi sức khỏe của bệnh nhân.
