Vào ngày 06/06/2025, Quang Huy đã hoàn thiện và bàn giao dự án bếp công nghiệp cho Nhà hàng Mạc Quán, tọa lạc tại khu du lịch Tam Đảo, tỉnh Vĩnh Phúc. Dự án được triển khai với định hướng tối ưu hóa không gian và hiệu suất chế biến, phục vụ mô hình nhà hàng chuyên các món đặc sản vùng núi. Toàn bộ khu bếp được thiết kế theo nguyên tắc một chiều khoa học, trang bị thiết bị inox hiện đại, an toàn và tiết kiệm năng lượng, mang đến giải pháp vận hành bền vững, hiệu quả cho chủ đầu tư.

Thông tin dự án
- Chủ đầu tư: Hộ kinh doanh Mạc Quán Tam Đảo
- Hạng mục: Cung cấp thiết bị và thi công lắp đặt bếp nhà hàng
- Diện tích: 80m2
- Địa chỉ: Tam Đảo – Vĩnh Phúc
- Phương án thi công: Bếp 1 chiều
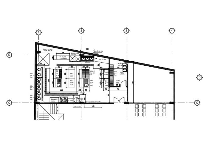
Phương án thi công và bản vẽ dự án
Khu bếp được thiết kế và thi công theo mô hình bếp một chiều, giải pháp tối ưu đảm bảo quy trình chế biến diễn ra liên tục, khoa học và an toàn vệ sinh thực phẩm. Toàn bộ khu vực được phân chia rõ ràng theo từng công đoạn: từ khu tiếp nhận, khu chế biến, cho đến khu ra món và vệ sinh dụng cụ. Hệ thống thiết bị inox được lắp đặt đồng bộ, đảm bảo độ bền cao, dễ vệ sinh và vận hành thuận tiện, góp phần tạo nên một không gian bếp chuyên nghiệp, hiện đại và hiệu quả cho nhà hàng.

Thiết kế và lắp đặt thiết bị bếp Mạc Quán – nhà hàng Tam Đảo
Căn cứ vào mặt bằng thực tế với diện tích sử dụng 80m², Quang Huy đã triển khai phương án thiết kế bếp công nghiệp tối ưu cho Nhà hàng Mạc Quán – Tam Đảo, theo mô hình bếp một chiều hiện đại, đáp ứng đầy đủ tiêu chuẩn về an toàn vệ sinh thực phẩm, hiệu suất vận hành và tính thẩm mỹ tổng thể.
Toàn bộ không gian được quy hoạch thành các khu vực chức năng rõ ràng, liên kết chặt chẽ theo luồng công việc khép kín, đảm bảo quá trình chế biến diễn ra liên tục, khoa học và thuận tiện:
Khu sơ chế
- Chậu rửa và bàn sơ chế thực phẩm.
- Giá kệ inox chứa đồ khô, thớt, dao, dụng cụ chế biến.
- Hệ thống kệ và thiết bị gắn tường tối ưu không gian lưu trữ.
Khu bếp nấu
- Bếp á đơn, bếp á đôi có quạt thổi, bếp hầm công nghiệp.
- Bếp chiên nhúng, bếp nướng than đá và bếp nướng điện.
- Bàn soạn, bàn gia vị, kệ song dưới phục vụ thao tác nhanh gọn
- Hệ thống chụp hút khói, ống dẫn khói.
Khu bát đĩa sạch
- Trang bị giá phẳng 4 tầng và giá thanh inox để úp bát đĩa.
- Bàn quay cơ có cửa lùa, giúp thao tác linh hoạt và tiết kiệm diện tích.









Dự án thi công và lắp đặt bếp công nghiệp cho Nhà hàng Mạc Quán – Tam Đảo một lần nữa khẳng định năng lực thiết kế – thi công trọn gói của Quang Huy trong việc cung cấp giải pháp bếp chuyên nghiệp, tối ưu theo từng mô hình kinh doanh thực tế. Chúng tôi tin rằng, một hệ thống bếp được đầu tư bài bản và thiết kế khoa học không chỉ giúp nâng cao chất lượng phục vụ mà còn góp phần tạo nên trải nghiệm ẩm thực trọn vẹn cho thực khách khi đến với Tam Đảo.
