Công ty TNHH Thiết bị bếp Việt Quang Huy hân hạnh được chọn làm đối tác thi công hệ thống thiết bị bếp công nghiệp cho Nhà hàng Tâm Thảo, một điểm đến ẩm thực nổi tiếng với những món ăn tinh tế và không gian sang trọng. Ngày 19/4/2024 dự án đang trong quá trình hoàn thiện những bước cuối cùng, sẵn sàng để chuẩn bị bàn giao và đưa vào hoạt động.
Thông tin dự án
Chủ đầu tư: Anh Tâm
Hạng mục: Thiết kế, Cung cấp thiết bị và thi công lắp dựng bếp ăn
Địa chỉ: Chợ xe Tề Lỗ – Vĩnh Phúc
Tổng diện tích lắp đặt: 50m2
Giới thiệu về Nhà Hàng Tâm Thảo
Nhà hàng Tâm Thảo được thiết kế với phong cách hiện đại pha lẫn truyền thống, tạo nên một không gian thoải mái và dễ chịu cho thực khách. Đặc biệt, nhà hàng chú trọng đến yếu tố thiên nhiên, với nhiều cây xanh và trang trí mang đậm nét văn hóa Việt Nam, mang đến không gian dùng bữa thoáng đãng, mát mẻ cho gia đình, công ty hoặc bạn bè.

Nhà hàng Tâm Thảo chuyên phục vụ các món ăn Việt Nam truyền thống, từ những món ăn dân dã đến các món đặc sản của các vùng miền. Các nguyên liệu tươi ngon và đảm bảo an toàn vệ sinh thực phẩm.
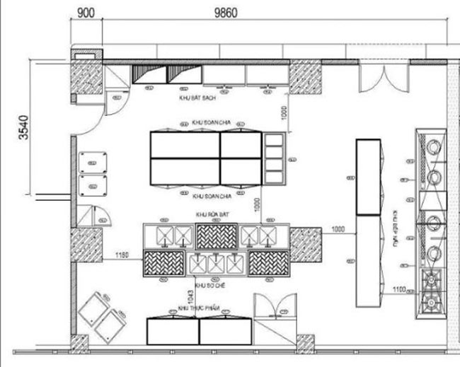
Bản vẽ dự án

Thiết kế, cung cấp thiết bị bếp cho Nhà hàng Tâm Thảo
Với mục tiêu tạo ra một không gian bếp hiện đại, tiện nghi và tối ưu hóa hiệu suất, Quang Huy sử dụng những thiết bị bếp công nghiệp hiện đại đảm bảo công năng sử dụng cao, đáp ứng mọi hoạt động chế biến và phục vụ khách hàng. Dự án thi công lần này sẽ là bước đệm quan trọng trong việc nâng cao chất lượng phục vụ và giữ vững uy tín của Nhà hàng Tâm Thảo trong khu vực.
Các thiết bị bếp được sử dụng trong nhà hàng Tâm Thảo
- Thiết bị bếp nấu: tum hút mùi và hệ thống dẫn khói, tủ nấu cơm hiệu Quang Huy, tủ sấy bát.
- Thiết bị khu nấu: bếp Á, bếp hầm, tủ đông, tủ mát, bàn mát.
- Thiết bị khu rửa: bàn chậu rửa bát, giá úp bát.
- Thiết bị khu sơ chế: bàn thớt, bàn chia đồ….,
Hình ảnh quy trình thi công, lắp đặt







