Ngày 4/10/2024, dự án thi công bếp quán cơm Hòa Bình được thực hiện bởi Quang Huy nhằm nâng cao chất lượng phục vụ và hiệu quả chế biến món ăn tại quán. Với thiết kế hiện đại và tính năng tiện ích, khu bếp được xây dựng để tối ưu hóa quy trình làm việc, đảm bảo hiệu suất cao trong việc phục vụ các món cơm truyền thống và phong phú. Bằng cách lựa chọn và sử dụng các thiết bị bếp chất lượng, Quang Huy đã tạo ra không gian bếp gọn gàng, hiện đại, mang đến môi trường làm việc thoải mái và hiệu quả cho nhân viên.
Thông tin dự án
- Chủ đầu tư: Ông Bùi Văn Thăng
- Hạng mục: Cung cấp thiết bị bếp
- Địa chỉ: Phố sấu, Xã Lạc Thịnh, huyện Yên Thủy, tỉnh Hòa Bình
- Tổng diện tích lắp đặt: 50m2
Giới thiệu về Quán cơm Hòa Bình
Quán cơm Hòa Bình là điểm đến lý tưởng cho những tín đồ yêu thích ẩm thực Việt Nam truyền thống. Nằm trong không gian ấm cúng và gần gũi, quán phục vụ thực đơn đa dạng với các món cơm thơm ngon, được chế biến từ những nguyên liệu tươi ngon và an toàn. Thực khách sẽ được thưởng thức những món ăn quen thuộc hàng ngày, quán phục vụ cả bữa trưa và bữa tối, phù hợp cho khách văn phòng, công ty hoặc gia đình.

Quán cơm Hòa Bình không chỉ chú trọng đến hương vị mà còn quan tâm đến chất lượng dịch vụ. Đội ngũ nhân viên nhiệt tình, thân thiện sẽ mang đến cho khách hàng những trải nghiệm ẩm thực tuyệt vời nhất. Không gian thoải mái, sạch sẽ cùng với những món ăn ngon sẽ là nơi lý tưởng để bạn thưởng thức bữa ăn cùng gia đình và bạn bè.
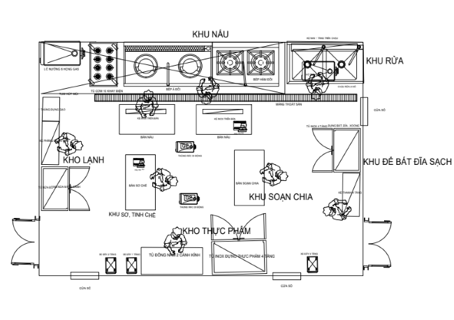
Phương án thiết kế và bản vẽ dự án
Sau khi trao đổi, Quang Huy và chủ đầu tư quyết định phương án thiết kế và thi công bếp nhà hàng cho quán. Việc lựa chọn phương án thi công phù hợp giúp tối ưu công năng, tiết kiệm chi phí và nâng cao chất lượng phục vụ.

Thiết kế, cung cấp thiết bị bếp cho Quán cơm Hòa Bình
Quang Huy vinh dự được đồng hành cùng quán cơm Hòa Bình trong việc thiết kế và cung cấp thiết bị bếp, nhằm tạo ra một không gian nấu nướng tối ưu cho việc chế biến các món ăn ngon và hấp dẫn. Với kinh nghiệm dày dạn trong lĩnh vực cung cấp thiết bị bếp công nghiệp, Quang Huy đã nghiên cứu và đề xuất các giải pháp phù hợp nhất để đảm bảo quán cơm Hòa Bình không chỉ đáp ứng được nhu cầu phục vụ thực khách mà còn nâng cao hiệu suất làm việc của đội ngũ nhân viên.
Các thiết bị đã lắp đặt bao gồm:
- Bàn inox
- Chậu rửa đôi
- Bếp
- Tum hút mùi
- Kệ úp bát
- Bàn ăn inox
Hình ảnh quy trình thi công, lắp đặt








