Vào ngày 16 tháng 3 năm 2024, Quang Huy đã tiến hành thi công và hoàn thiện khu bếp ăn chuỗi nhà hàng Hẻm quán. Không gian khu bếp được thiết kế vô cùng rộng rãi, thiết kế hiện đại và vô cùng chuyên nghiệp đáp ứng đúng nhu cầu của khách hàng như đã đề ra trong hợp đồng.
Thông tin dự án
- Chủ đầu tư: Nhà hàng Hẻm Quán
- Hạng mục: Cung cấp thiết bị và thi công lắp dựng bếp ăn
- Địa chỉ: 92 Vũ Phạm Hàm – Cầu giấy – Hà Nội
- Tổng diện tích lắp đặt: 60 m2
Giới thiệu về nhà hàng Hẻm Quán
Nhà hàng Hẻm Quán là một quán ăn mang đậm văn hóa ẩm thực Sài Gòn với 3 cơ sở chính tại Hà Nội:
- 96 Chùa Hà (khu biệt thự D1 Làng Quốc Tế Thăng Long), Cầu Giấy – (024) 3793 9328
- 149 -161 Hoàng Cầu (số 66-68 cũ) , Đống Đa – (024) 3538 1636
- 92 Vũ Phạm Hàm, Cầu Giấy – (024) 6681 6199
Với không gian ấm cúng, rộng rãi phục vụ được nhiều thực khách cùng một thời điểm với đa dạng các món ăn như lẩu bò nhúng giấm, phá lấu, bao tử hầm tiêu, cá lóc quay nước dừa,.. Với sự phát triển không ngờ tại 2 cơ sở tại chùa Hà và khu vực Hoàng Cầu, mới đây, Hẻm Quán lại mở thêm một cơ sở tại Vũ Phạm Hàm để phục vụ thực khách.
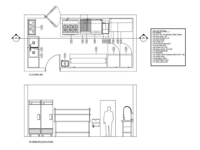
Bản vẽ dự án

Thiết kế, cung cấp thiết bị bếp cho nhà hàng Hẻm Quán
Cùng với việc mở thêm cơ sở mới của nhà hàng Hẻm Quán, chủ nhà hàng đã tiến hành thiết kế cũng như thi công không gian bếp rộng rãi, đầy đủ trang thiết bị để đầu bếp cũng như nhân viên có một vị trí thuận lợi để làm việc một cách thoải mái nhất. Giữa hàng trăm hàng nghìn đơn vị khác nhau trên thị trường, Quang Huy vinh dự khi trở thành nhà thầu duy nhất trong việc tư vấn thiết kế cũng như thi công lắp dựng hệ thống bếp ăn của Hẻm Quán tại số 92 Vũ Phạm Hàm.

Các thiết bị bếp bao gồm:
- Tum hút mùi và hệ thống dẫn khói
- Tủ sấy bát hiệu Quang Huy
- Thiết bị khu nấu bao gồm bếp Á, lò nướng,..
- Cung cấp thiết bị khu rửa bao gồm bàn chậu rửa bát, giá úp bát,
- Thiết bị khu sơ chế bao gồm bàn thớt, bàn chia đồ….
Hình ảnh quy trình thi công, lắp đặt









