Dự án thi công bếp tại Bếp Nấu nhà hàng Về bản cho em được Quang Huy thi công vào ngày 18 tháng 3 năm 2024. Không gian bếp được thiết kế đẹp, rộng rãi, hiện đại nhằm nâng cao chất lượng cũng như hiệu suất hoạt động trong bếp Nấu nhà hàng.

Thông tin dự án
- Chủ đầu tư: Bếp Nấu nhà hàng Về bản em
- Hạng mục: Thiết kế, Cung cấp thiết bị và thi công lắp dựng bếp ăn
- Địa chỉ: Thạch Hòa, Thạch Thất, Hà Nội
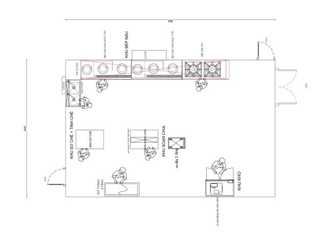
- Tổng diện tích lắp đặt: 41 m2
Giới thiệu về Bếp Nấu nhà hàng Về bản em
Bếp Nấu nhà hàng về bản em tại Thạch Hòa, Thạch Thất, Hà Nội là điểm đến cho những người yêu thích ẩm thực dân tộc Việt Nam với không gian đậm chất dân dã và ấm cúng như cơm lam, thịt gác bếp, cá nướng,..
Không chỉ đem đến cho thực khách những món ăn ngon, mà Bếp Nấu còn mang đến cảm giác như bạn đang được thưởng thức những món ăn ngon của gia đình, một sự gần gũi thân quen. Với đội ngũ nhân viên tận tâm, đầu bếp giỏi từ nhà hàng, khách sạn 5 sao chắc chắn mang đến cho thực khách những bữa ăn ngon, đậm đà hương vị quê hương.
Bản vẽ dự án

Thiết kế, cung cấp thiết bị bếp cho Bếp Nấu nhà hàng Về bản em
Với yêu cầu cung cấp thiết bị bếp ăn công nghiệp đáp ứng đủ hiệu suất cho 200 – 300 suất ăn mỗi ngày, Quang Huy đã đến trực tiếp Bếp Nấu nhà hàng Về bản em để khảo sát, đo đạc để đưa ra phương án, bản vẽ không gian bếp tối ưu nhất.
Các thiết bị bếp nấu được Quang Huy cung cấp bao gồm:
- Tum hút mùi và hệ thống dẫn khói
- Tủ nấu cơm hiệu Quang Huy, tủ sấy bát, nồi phở điện
- Thiết bị khu nấu bao gồm bếp Á
- Cung cấp thiết bị khu rửa bao gồm bàn chậu rửa bát, giá úp bát
- Thiết bị khu sơ chế bao gồm bàn thớt, bàn chia đồ….,
Hình ảnh quy trình thi công, lắp đặt




