Dự án thi công bếp ăn villa Ba Vì – Hà Nội do Quang Huy trực tiếp thiết kế và thi công là một trong những dự án tiêu biểu, thể hiện sự kết hợp hài hòa giữa công năng và thẩm mỹ. Không gian bếp được xây dựng theo tiêu chuẩn chuyên nghiệp, bố trí khoa học, đáp ứng tốt nhu cầu chế biến trong môi trường villa nghỉ dưỡng, đồng thời đảm bảo sự tiện nghi, an toàn và độ bền lâu dài trong quá trình sử dụng.

Thông tin dự án thi công Bếp Villa Ba Vì Hà Nội
- Chủ đầu tư: Anh Đỗ Đức Mạnh
- Hạng mục: Cung cấp thiết bị bếp
- Diện tích: 30m²
- Địa chỉ: Ba Vì – Hà Nội
- Phương án thi công: Bếp 1 chiều
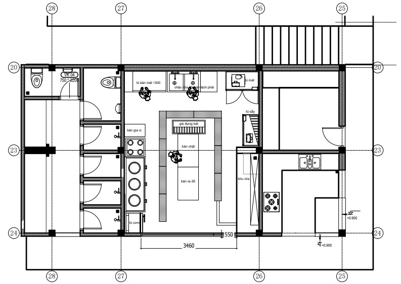
Phương án thi công và bản vẽ dự án
Thiết kế và lắp đặt thiết bị bếp Villa Ba Vì Hà Nội
Quang Huy rất vinh dự khi được tín nhiệm trở thành đơn vị thiết kế và thi công hệ thống bếp Villa Ba Vì Hà Nội. Việc đầu tư vào một hệ thống bếp hiện đại là bước tiến chiến lược nhằm nâng cao chất lượng bữa ăn và đáp ứng nghiêm ngặt tiêu chuẩn vệ sinh an toàn thực phẩm (VSATTP) trong môi trường y tế.
Bếp được chia thành các khu vực dựa trên công năng như sau:
Khu lưu trữ, bảo quản
- Tủ bàn mát 1500
- Tủ mát
- Tủ cơm
Khu sơ chế thực phẩm
- Chậu rửa 2 hố (trái – phải)
- Bàn sơ chế
- Khu rửa riêng biệt
Khu chế biến thực phẩm
- Bếp Âu 4 họng
- Bếp hầm
- Bàn gia vị
- Tum hút mùi (khu vực hút khói – thoát mùi)
Khu chuẩn bị ra đồ
- Bàn chặt trung tâm
- Giá đựng bát
- Bàn ra đồ
Khu rửa dọn
- Khu rửa bát riêng
- Tủ sấy bát








