Dự án thi công Bếp G.O.C Bắc Giang do Quang Huy trực tiếp thực hiện đã chính thức hoàn thành và bàn giao, toàn bộ khu bếp được thiết kế và thi công theo quy trình khoa học, đảm bảo tiêu chuẩn vận hành an toàn và hiệu quả, đồng thời sử dụng các thiết bị inox chuyên dụng chất lượng cao. Dự án hướng tới việc xây dựng một không gian bếp hiện đại, bền bỉ, đáp ứng tốt nhu cầu chế biến và phục vụ thực khách, góp phần nâng cao chất lượng hoạt động của nhà hàng.

Thông tin dự án thi công Bếp G.O.C Bắc Giang
- Chủ đầu tư: Công ty CP Chế biến thực phẩm xuất khẩu G.O.C
- Hạng mục: Cung cấp thiết bị bếp
- Địa chỉ: Bắc Giang
- Phương án thi công: Bếp 1 chiều

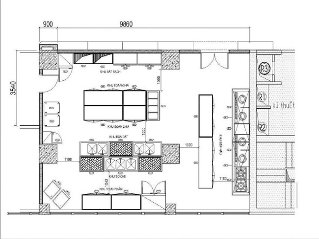
Phương án thi công và bản vẽ dự án
Thiết kế và lắp đặt thiết bị Bếp G.O.C Bắc Giang
Quang Huy rất vinh dự khi được tín nhiệm trở thành đơn vị thiết kế và thi công hệ thống bếp G.O.C Bắc Giang. Việc đầu tư vào một hệ thống bếp hiện đại là bước tiến chiến lược nhằm nâng cao chất lượng bữa ăn và đáp ứng nghiêm ngặt tiêu chuẩn vệ sinh an toàn thực phẩm (VSATTP) trong môi trường y tế.
Bếp được chia thành các khu vực chính, kết nối chặt chẽ theo luồng công việc khép kín:
Khu kho lưu trữ
- Kho gas riêng biệt
- Kệ đứng đồ 4 tầng
- Xe đẩy hàng
- Xe đẩy thức ăn
- Tủ mát 4 cánh
- Tủ đông 4 cánh
Khu sơ chế thực phẩm
- Bàn tinh chế có kệ gia vị
- Bàn soạn chia
- Chậu rửa đơn
- Tủ mát 3 cánh kính
Khu rửa
- Bồn rửa 3 hố
- Máy rửa bát siêu âm
- Tủ sấy bát 3 cánh kính
- Giá để bát đĩa 2 tầng
Khu chế biến – nấu chính
- Bếp gas 3 họng
- Bếp gas 2 họng
- Bàn đặt lò nướng
- Bếp hầm đôi
- Tủ cơm
- Nồi phở điện 2 ngăn 100L
- Tum hút mùi inox








