Dự án thi công bếp siêu thị Hòa Bình được Quang Huy thực hiện với tâm huyết, nhằm mang đến không gian bếp tối ưu và hiện đại cho hoạt động kinh doanh của siêu thị. Quang Huy tự hào đảm nhận trách nhiệm lắp đặt và cung cấp thiết bị bếp, mang đến không gian bếp tiện lợi, sẵn sàng đáp ứng và phục vụ nhu cầu dùng bữa ăn nhanh tại đây.
Thông tin dự án
- Chủ đầu tư: Siêu thị Hòa Bình
- Hạng mục: Cung cấp thiết bị bếp
- Địa chỉ: 942, Hai Bà Trưng, Hòa Bình
- Tổng diện tích lắp đặt: 20m2
Giới thiệu về siêu thị mini Hòa Bình
Siêu thị mini Hòa Bình là một địa điểm mua sắm quen thuộc với sự đa dạng và phong phú trong danh mục sản phẩm, từ thực phẩm tươi sống, đồ gia dụng, cho đến các nhu yếu phẩm hàng ngày. Với mục tiêu cung cấp và phân phối các mặt hàng đa dạng cho khách địa phương, các sản phẩm được bày bán không chỉ đảm bảo chất lượng mà còn đảm bảo mức giá phải chăng, phục vụ đối tượng khách hàng từ hộ gia đình, học sinh, sinh viên đến nhân viên văn phòng,….

Đặc biệt, siêu thị mini Hòa Bình còn cung cấp các dịch vụ tiện ích như quầy ăn nhanh cùng những món ăn phong phú và dễ dàng lựa chọn, giúp khách hàng có những bữa ăn nhanh chóng và tiện lợi ngay tại siêu thị.
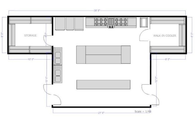
Bản vẽ dự án

Cung cấp thiết bị bếp cho siêu thị Hòa Bình
Quán cơm trong siêu thị Hòa Bình được Quang Huy thiết kế với các thiết bị bếp công nghiệp tối ưu, nhằm đáp ứng nhu cầu phục vụ món ăn đa dạng. Hệ thống bếp được bố trí khoa học, thiết bị bếp được làm từ chất liệu inox cao cấp, đảm bảo độ bền và dễ dàng vệ sinh.
Các thiết bị đã lắp đặt bao gồm:
- Bàn bếp á 3 họng
- Giá đỡ treo tường bằng nan
- Bàn tủ để bếp gas đôi
- Khung inox đục lỗ hở phía sau che bình gas
Hình ảnh quy trình thi công, lắp đặt




