Ngày 23 tháng 3 năm 2024, Quang Huy đã tiến hành thi công khu bếp của Bếp nấu Mizu Hub có địa chỉ tại số 69 Ngõ Láng Trung, quận Đống Đa, Hà Nội. Đây là khu bếp được thiết kế theo phong cách bếp nhà hàng online vô cùng rộng rãi, sạch sẽ và chuyên nghiệp.
Thông tin dự án
- Chủ đầu tư: Bếp nấu Mizu Hub
- Hạng mục: Thiết kế, Cung cấp thiết bị và thi công lắp dựng bếp ăn
- Địa chỉ: 69 Ngõ Láng Trung, quận Đống Đa, Hà Nội
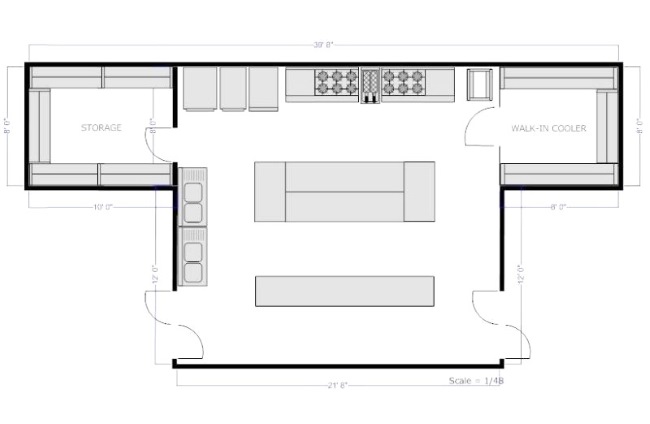
- Tổng diện tích lắp đặt: 40 m2
Giới thiệu về Bếp nấu Mizu Hub
Bếp nấu Mizu Hub là một điểm chọn lý tưởng cho những ai đang tìm đến những bữa cơm văn phòng chất lượng cao.
Với đội ngũ đầu bếp từng là bếp trưởng của khách sạn 5 sao, chắc chắn sẽ mang đến cho thực khách những bữa cơm ngon miệng, đảm bảo chất dinh dưỡng. Đặc biệt luôn sử dụng nguyên liệu tươi ngon, đem đến những món ăn đa dạng và phong phú cho thực khách lựa chọn.
Bản vẽ dự án

Thiết kế, cung cấp thiết bị bếp cho Bếp nấu Mizu Hub
Với hơn 10 năm kinh nghiệm trong lĩnh vực thi công, cung cấp thiết bị bếp công nghiệp , Quang Huy thật vinh dự khi được chủ bếp nấu Mizu Hub lựa chọn trong hàng trăm hàng nghìn đơn vị khác nhau với mong muốn đem lại sự tiện lợi, tối ưu hóa không gian, cung cấp các thiết bị thiết yếu để phục vụ cho công việc nấu ăn hàng ngày của các đầu bếp.

Các thiết bị bếp nấu được Quang Huy cung cấp bao gồm:
- Tum hút mùi và hệ thống dẫn khói
- Tủ nấu cơm hiệu Quang Huy
- Thiết bị khu nấu bao gồm bếp Á, bếp Âu, lò nướng,
- Cung cấp thiết bị khu rửa bao gồm bàn chậu rửa bát, giá úp bát,
- Thiết bị khu sơ chế bao gồm bàn thớt, bàn chia đồ, bàn lạnh,
- Quầy pha chế
Hình ảnh quy trình thi công, lắp đặt








