Ngày 19 tháng 1 năm 2024, Quang Huy đã bàn giao dự án thi công bếp ăn cơ quan tại Trụ sở công an huyện Gia Lâm, thành phố Hà Nội. Không gian bếp được thiết kế hiện đại, chuyên nghiệp theo đúng tiêu chuẩn đã đề ra trong hợp đồng
Thông tin dự án
- Chủ đầu tư: Công an huyện Gia Lâm
- Hạng mục: Cung cấp thiết bị và thi công lắp dựng bếp ăn cán bộ công nhân viên
- Địa chỉ: 114 Cổ Bi – Xã Cổ Bi – Huyện Gia Lâm – Hà Nội
- Tổng diện tích lắp đặt: 80m2
Giới thiệu về Trụ sở công an huyện Gia Lâm
Trụ sở công an huyện Gia Lâm là nơi làm việc của các cán bộ, công an thuộc khu vực Gia Lâm. Trụ sở công an huyện Gia Lâm luôn là một trong những lá cờ đầu trong việc bảo vệ trật tự, bình yên của quận Gia Lâm nói chung và thành phố Hà Nội nói riêng
Với mong muốn đem đến cho hơn 400 cán bộ công nhân viên khu bếp ăn cơ quan hiện đại, tiện nghi nhất, Công an huyện Gia Lâm đã tiến hành xây dựng và thi công khu bếp với tổng diện tích 80m2. Quang Huy rất hân hạnh khi được Trụ sở lựa chọn, tin tưởng để thi công và lắp đặt thiết bị bếp công nghiệp.

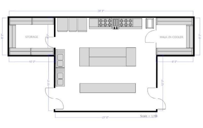
Bản vẽ dự án

Thiết kế, thi công, lắp đặt thiết bị bếp cho Trụ sở công an huyện Gia Lâm
Với đội ngũ kỹ thuật viên tay nghề cao, có nhiều năm kinh nghiệm hoạt động trong lĩnh vực F&B, Quang Huy đã setup khu bếp cơ quan cho Trụ sở công an huyện Gia Lâm cẩn thận, chi tiết, từ khâu lên bản vẽ thiết kế cho đến khâu lắp đặt, đảm bảo tính thẩm mỹ và sự tiện lợi.
Các thiết bị đã lắp đặt bao gồm:
- Thiết bị bếp nấu: bếp xào, bếp hầm
- Thiết bị khu rửa: bàn rửa, chậu rửa, giá úp bát
- Thiết bị sơ chế: bàn thớt, bàn ra đồ
- Thiết bị bảo quản: tủ đông, tủ mát,..
Hình ảnh quy trình thi công, lắp đặt














