Ngày 15/05/2025, Quang Huy đã chính thức hoàn thành dự án thi công bếp Trường Quốc tế Vietnamese British. Hệ thống bếp hiện đại không chỉ phù hợp với các tiêu chuẩn vệ sinh trong môi trường giáo dục quốc tế mà còn giúp tiết kiệm năng lượng vận hành. Từ đó, góp phần tối ưu chi phí cho đơn vị vận hành, đồng thời nâng cao chất lượng bữa ăn cho học sinh, giáo viên nhà trường.
Thông tin dự án
- Chủ đầu tư: Công ty TNHH Trường Quốc Tế Vietnamese British
- Hạng mục: Cung cấp thiết bị và thi công lắp đặt bếp ăn cho trường học
- Địa chỉ: số 9 Võ Văn Kiệt, Phường 9, Vĩnh Long
- Tổng diện tích lắp đặt: 60m2.
Giới thiệu về công ty TNHH Trường Quốc Tế Vietnamese British
Công ty TNHH Trường Quốc tế Vietnamese British được thành lập vào ngày 16/04/2025, có trụ sở tại số 9, đường Võ Văn Kiệt, phường 9, TP. Vĩnh Long. Với mục tiêu xây dựng một hệ thống giáo dục chuẩn quốc tế, công ty triển khai chương trình đào tạo song ngữ Anh – Việt từ bậc mầm non đến trung học phổ thông, kết hợp đội ngũ giáo viên bản ngữ và trong nước.

Bên cạnh các chương trình giáo dục chính khóa, công ty còn mở rộng hoạt động sang đào tạo nghề sơ cấp (spa, cắt tóc, gội đầu…), tư vấn du học, giáo dục kỹ năng, tổ chức hoạt động thể thao – giải trí và dịch vụ ăn uống. Với định hướng phát triển toàn diện và linh hoạt, Trường Quốc tế Vietnamese British đang dần khẳng định vị thế là một mô hình giáo dục mới tại khu vực Tây Nam Bộ.
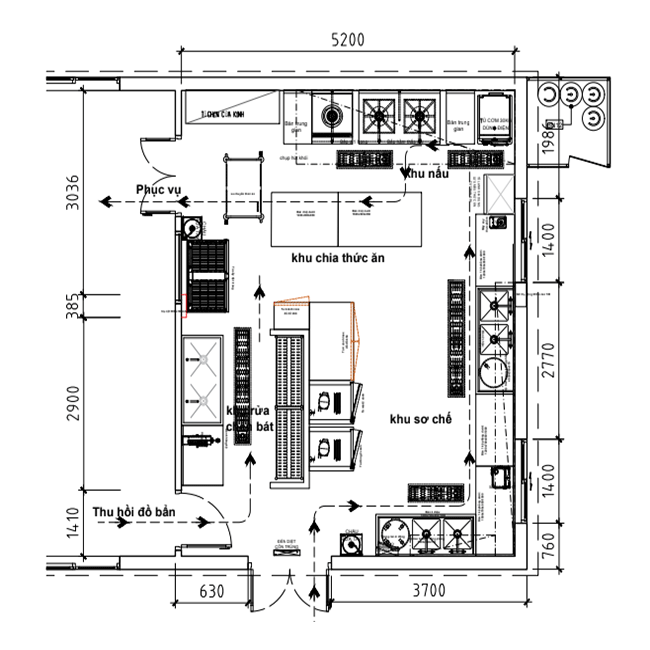
Phương án thiết kế và bản vẽ dự án thi công bếp cho công ty TNHH Trường Quốc Tế Vietnamese British
Quang Huy rất vinh dự và tự hào khi trở thành đơn vị thiết kế, thi công bếp ăn cho Công ty TNHH Trường Quốc tế Vietnamese British. Việc đầu tư hệ thống bếp hiện đại là bước đi quan trọng nhằm nâng cao chất lượng bữa ăn và đảm bảo vệ sinh an toàn thực phẩm cho học sinh trong môi trường giáo dục quốc tế.

Dự án đã được hoàn thành vào ngày 15 tháng 5 năm 2025, đúng tiến độ đã cam kết. Các thiết bị bếp công nghiệp được lắp đặt đều đáp ứng tiêu chuẩn vận hành trong trường học, tối ưu hóa quy trình chế biến, tiết kiệm năng lượng và dễ dàng vệ sinh. Đây là một trong những công trình đánh dấu sự đồng hành của Quang Huy trong việc nâng tầm chất lượng giáo dục thông qua giải pháp bếp ăn chuyên nghiệp.
Khu sơ chế
- Bàn 2 chậu (1800x700x850/1000)
- Bàn 1 kệ phẳng dưới (1500x700x850/1000)
- Kệ treo tường 1 tầng
- Máy xay thịt
- Máy xay thực phẩm
- Chậu rửa tay
- Thùng rác di động
- Tủ khử trùng dao
Khu nấu
- Bếp á 1 họng
- Bếp hầm thấp đôi
- Chụp hút khói
- Tủ đựng chén cửa kính
- Tủ cơm 30kg dùng điện
- Tủ 4 cánh inox để đồ khô
- Bàn trung gian
- Xe chuyển thức ăn
- Chậu rửa tay
Khu chia thức ăn
- Bàn 2 kệ dưới (1200/1500x900x850)
Khu rửa chén bát
- Bàn 2 chậu rửa
- Vòi xịt sàn
- Thùng rác di động
- Tủ sấy tiệt trùng
Khu lưu trữ
- Tủ mát 2 cánh
- Tủ đông 2 cánh
- Tủ lạnh gia dụng lưu mẫu thức ăn
- Tủ 4 cánh inox để đồ khô
Hình ảnh quy trình thi công, lắp đặt





