Ngày 25/07/2024, dự án thi công bếp công nghiệp cho chuỗi nhà hàng Phở Lý Quốc Sư do Quang Huy chủ trì đã hoàn thành, đánh dấu một bước tiến quan trọng nhằm nâng cao chất lượng phục vụ và tối ưu hóa quy trình chế biến tại một trong những thương hiệu phở nổi tiếng nhất Việt Nam. Với hơn 15 năm kinh nghiệm trong lĩnh vực thiết kế và thi công bếp công nghiệp, Quang Huy đã áp dụng các giải pháp thiết kế và thi công bếp hiện đại, đảm bảo tiêu chuẩn an toàn vệ sinh, tiết kiệm năng lượng và phù hợp với quy mô hoạt động của chuỗi nhà hàng.
Thông tin dự án
- Chủ đầu tư: Phở Lý Quốc Sư.
- Hạng mục: Thiết kế, cung cấp thiết bị bếp.
- Địa chỉ: số 168 Nguyễn Lương Bằng – Đống Đa – Hà Nội.
- Tổng diện tích lắp đặt: 20m2.
Giới thiệu về phở Lý Quốc Sư
Phở Lý Quốc Sư là một trong những thương hiệu phở nổi tiếng nhất tại Việt Nam, được yêu thích bởi hương vị đậm đà và công thức chế biến độc đáo, giữ trọn tinh hoa của ẩm thực truyền thống Hà Nội. Ra đời từ năm 2005, phở Lý Quốc Sư nhanh chóng trở thành điểm đến quen thuộc của những người yêu phở, không chỉ tại Hà Nội mà còn ở nhiều tỉnh thành khác trên cả nước.

Hiện nay, Phở Lý Quốc Sư đã mở rộng ra nhiều chi nhánh trên toàn quốc, trở thành một trong những thương hiệu hàng đầu trong lĩnh vực ẩm thực phở, góp phần đưa hương vị truyền thống Việt Nam đến gần hơn với mọi người.
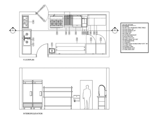
Bản vẽ dự án

Thiết kế, cung cấp thiết bị bếp cho Phở Lý Quốc Sư
Dự án hợp tác cùng Phở Lý Quốc Sư không chỉ khẳng định vị thế của Quang Huy trong lĩnh vực bếp công nghiệp, mà còn là bước tiến lớn giúp chuỗi nhà hàng này nâng cao hiệu quả hoạt động và duy trì chất lượng phục vụ.
Các thiết bị được Quang Huy cung cấp cho quán phở Lý Quốc Sư gồm: quầy phở, lắp đặt hệ thống máng, ghi, thoát sàn, bẫy mỡ.
Hình ảnh quy trình vận chuyển và lắp đặt tại quán phở Lý Quốc Sư






