Ngày 10/07/2025, Quang Huy đã chính thức hoàn thành dự án thi công bếp chị Ngọc và bàn giao cho chủ đầu tư. Dự án không chỉ đáp ứng yêu cầu khắt khe về thẩm mỹ và hiệu suất vận hành, mà còn chú trọng yếu tố an toàn vệ sinh, tiết kiệm năng lượng và tạo không gian thao tác khoa học cho đội ngũ đầu bếp.

Thông tin dự án
- Chủ đầu tư: Chị Ngọc
- Hạng mục: Cung cấp thiết bị bếp, tum hút khói cấp khí tươi
- Địa chỉ: Số 78 Tân Ấp, phường Phúc Xá, quận Ba Đình, Hà Nội
- Diện tích thi công: 200m²
- Phong cách thiết kế: Bếp trung tâm hiện đại
- Thời gian hoàn thành: 10/07/2025
Thiết kế và cung cấp thiết bị bếp cho chị Ngọc
Quang Huy rất vinh dự khi được đồng hành cùng chị Ngọc trong việc hiện thực hóa mô hình bếp trung tâm đạt chuẩn, phù hợp để triển khai các dịch vụ ăn uống, suất ăn công nghiệp hoặc chế biến thực phẩm theo quy mô lớn.
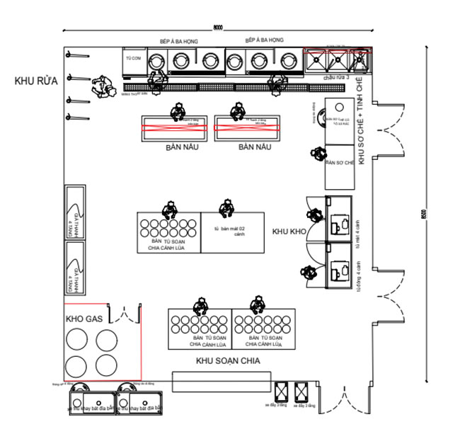
Với diện tích 200m², đội ngũ kỹ sư của Quang Huy đã lên phương án phân khu chức năng rõ ràng, tối ưu dòng di chuyển một chiều trong bếp. Đơn vị hỗ trợ lắp đặt hệ thống hút khói cấp khí tươi nhằm đảm bảo an toàn và thoáng khí trong quá trình sử dụng liên tục.

Bản vẽ dự án

Danh mục thiết bị thi công bao gồm:
Toàn bộ thiết bị đều được chế tạo từ inox chống gỉ sét, bền đẹp, đảm bảo vệ sinh an toàn thực phẩm. Các nhóm thiết bị tiêu biểu gồm:
Khu kho
- Bàn Bếp Inox
- 4 Kệ Treo Tường 2 Tầng
- 2 Chụp Hút Mùi, Khói Đơn
Hệ thống ống gió
- Tủ điện quạt hút, quạt cấp gió tươi
- Quạt hút khói kèm hộp tiêu âm
- Quạt cấp khí tươi hơi nước
- Bộ ống gió tum hút
- Bộ ống gió cấp khí tươi
- Chân rẽ, bịt đầu ống tôn tráng kẽm
- Gói phụ kiện
- Giá đỡ quạt hút, chống rung
- Cửa gió cấp khí tươi
Hình ảnh quy trình thi công, lắp đặt




Dự án bếp trung tâm tại 78 Tân Ấp một lần nữa khẳng định năng lực thiết kế – thi công đồng bộ, giúp khách hàng tiết kiệm chi phí, dễ dàng vận hành và nâng cao hiệu quả chế biến.


