Quang Huy thi công hoàn thiện thiết kế bếp ăn công nghiệp cho Công ty TNHH HS Hyosung Vina Core Materials. Không gian khu bếp được thiết kế vô cùng rộng rãi, hiện đại và vô cùng chuyên nghiệp đáp ứng đúng nhu cầu của khách hàng như đã đề ra trong hợp đồng.
Thông tin dự án
- Chủ đầu tư: Công ty TNHH HS Hyosung Vina Core Materials
- Hạng mục: Cung cấp thiết bị và thi công lắp dựng bếp ăn cán bộ , công nhân nhà máy
- Địa chỉ: Lô B7, Đường N2, Khu Công Nghiệp Phú Mỹ II, Phường Tân Phước, Thị xã Phú Mỹ, Tỉnh Bà Rịa – Vũng Tàu.
- Tổng diện tích lắp đặt: 100m2
- Phong cách: Bếp 1 chiều
Giới thiệu về công ty TNHH HS Hyosung Vina Core Materials
Công Ty TNHH Hyosung Vina Core Materials là một công ty đa quốc gia lớn cung cấp các nguyên liệu chất lượng cao và dịch vụ để thị trường công nghiệp. Tự hào đảm bảo sự thành công của khách hàng bằng cách cung cấp các sản phẩm và dịch vụ chất lượng tốt nhất.
Công Ty TNHH Hyosung Vina Core Materials được thành lập năm 2023 với mục đích cung cấp các nguyên liệu chất lượng cao và dịch vụ để thị trường công nghiệp. Công ty luôn cố gắng hỗ trợ khách hàng của mình bằng cách cung cấp các sản phẩm và dịch vụ chất lượng tốt nhất.
Với đội ngũ nhân viên chuyên nghiệp và nhiều năm kinh nghiệm trong lĩnh vực cung cấp nguyên liệu chất lượng cao, Công Ty TNHH Hyosung Vina Core Materials luôn sẵn sàng để đáp ứng nhu cầu của khách hàng.
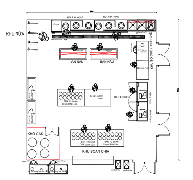
Bản vẽ dự án

Thiết kế, cung cấp thiết bị bếp cho công ty TNHH HS Hyosung Vina Core Materials
Quang Huy rất vinh dự và tự hào khi trở thành đơn vị thi công, thiết kế bếp ăn cho công ty TNHH HS Hyosung Vina Core Materials. Việc đầu tư khu bếp là vô cùng cần thiết, phục vụ cho cán bộ, nhân viên và khách du lịch.
Dự án đã được hoàn thành vào ngày 15 tháng 1 năm 2025, đúng với tiến độ đã cam kết. Những thiết bị bếp công nghiệp được đầu tư bao gồm:
Nhà bếp
- Tum hút , quạt , ống gió , lắp đặt tum , ống gió
- Bếp á đôi công nghiệp dùng gas
- Bếp hầm đơn công nghiệp dùng gas
- Tủ cơm loại 24 khay dùng điện và gas có liền điều khiển
- Bàn inox có giá dưới liền
- Nồi nấu bằng điện 100L
Khu rửa
- Tủ sấy dao thớt cánh kính
- Tủ sấy khay 2 cánh kính
- Tủ sấy ủng/đồng phục
- Chậu rửa hố lớn
- Bàn inox có gáy giá dưới đan song
- Kệ phẳng 4 tầng
- Kệ thanh 4 tầng
- Xe vận chuyển thực phẩm 1 tầng
Kho thực phẩm khô
- Tủ đông đứng 4 cánh làm lạnh quạt gió
- Tủ mát đứng 4 cánh làm lạnh quạt gió
Khu sơ chế rau củ quả
- Bàn inox có gáy có giá phẳng dưới
- Chậu rửa ba hố
- Chậu rửa đôi
- Bàn inox có gáy có giá phẳng dưới
- Bàn chậu rửa đơn lệch trái
Khu soạn chia
- Tủ giữ nóng cơm và canh
- Xe đẩy gia vị 3 tầng
- Bàn inox phẳng 2 tầng có bánh xe
Hình ảnh quy trình thi công, lắp đặt


