Quang Huy đã hoàn thiện và bàn giao dự án thi công bếp ăn chuyên nghiệp cho M.E.I Coffee & Tea, tọa lạc tại huyện Trảng Bom, tỉnh Đồng Nai. Dự án được triển khai với mục tiêu tối ưu hiệu suất chế biến, đảm bảo vệ sinh và tiện nghi vận hành cho khu bếp trong mô hình kinh doanh ăn uống quy mô vừa.

Thông tin dự án
- Chủ đầu tư: Chị Hằng Vi
- Hạng mục: Cung cấp thiết bị bếp
- Địa chỉ: Số 334, đường Sông Thao, huyện Trảng Bom, tỉnh Đồng Nai
Thiết kế và lắp đặt thiết bị bếp cho M.E.I Coffee & Tea
Quang Huy rất hân hạnh khi được M.E.I Coffee & Tea tin tưởng lựa chọn làm đơn vị thi công khu bếp. Với kinh nghiệm triển khai hàng trăm mô hình bếp ăn công nghiệp và nhà hàng, chúng tôi đã thiết kế layout bếp theo hướng khoa học – an toàn – dễ vận hành, phù hợp với diện tích thực tế và nhu cầu sử dụng.
Toàn bộ thiết bị đều được chế tạo từ inox cao cấp, đảm bảo độ bền cao, chống gỉ sét và dễ vệ sinh sau mỗi ca làm việc. Quang Huy cũng bố trí hệ thống thiết bị theo từng khu vực chức năng để tối ưu hóa dòng chảy thao tác trong khu bếp.

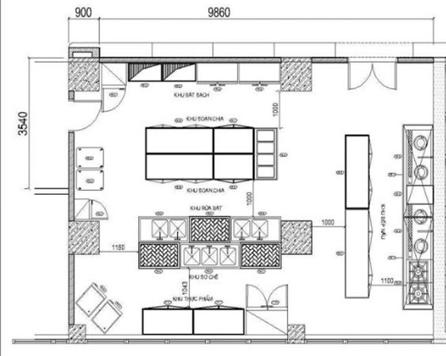
Bản vẽ dự án

Danh mục thiết bị thi công bao gồm:
- 1 Kệ đựng bát đĩa
- 2 Bàn phẳng vai thấp
- 1 Bàn phẳng vai cao
- 1 Bếp á 3 họng
- 1 Tum hút mùi 1m5
- 1 Chậu rửa 2 bồn rộng tích hợp giá kệ trên bồn






Với phương châm “Giải pháp bếp toàn diện – Bền vững cùng khách hàng”, Quang Huy luôn không ngừng nâng cao chất lượng sản phẩm và dịch vụ. Dự án tại M.E.I Coffee & Tea một lần nữa thể hiện năng lực thi công chuyên nghiệp, tinh thần trách nhiệm và sự đồng hành của chúng tôi với các đơn vị kinh doanh F&B trên khắp cả nước.

